HOMEWARD DEVELOPMENT
Συγκρότημα Κατοικιών στο Λαγονήσι – Blue Bay 4 Project
Το Συγκρότημα
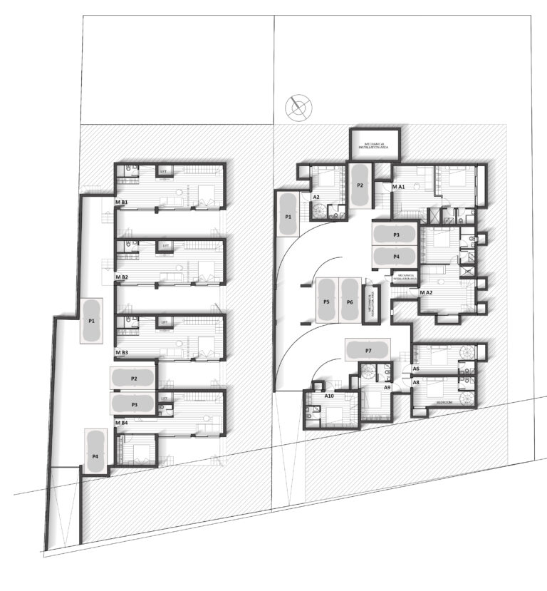
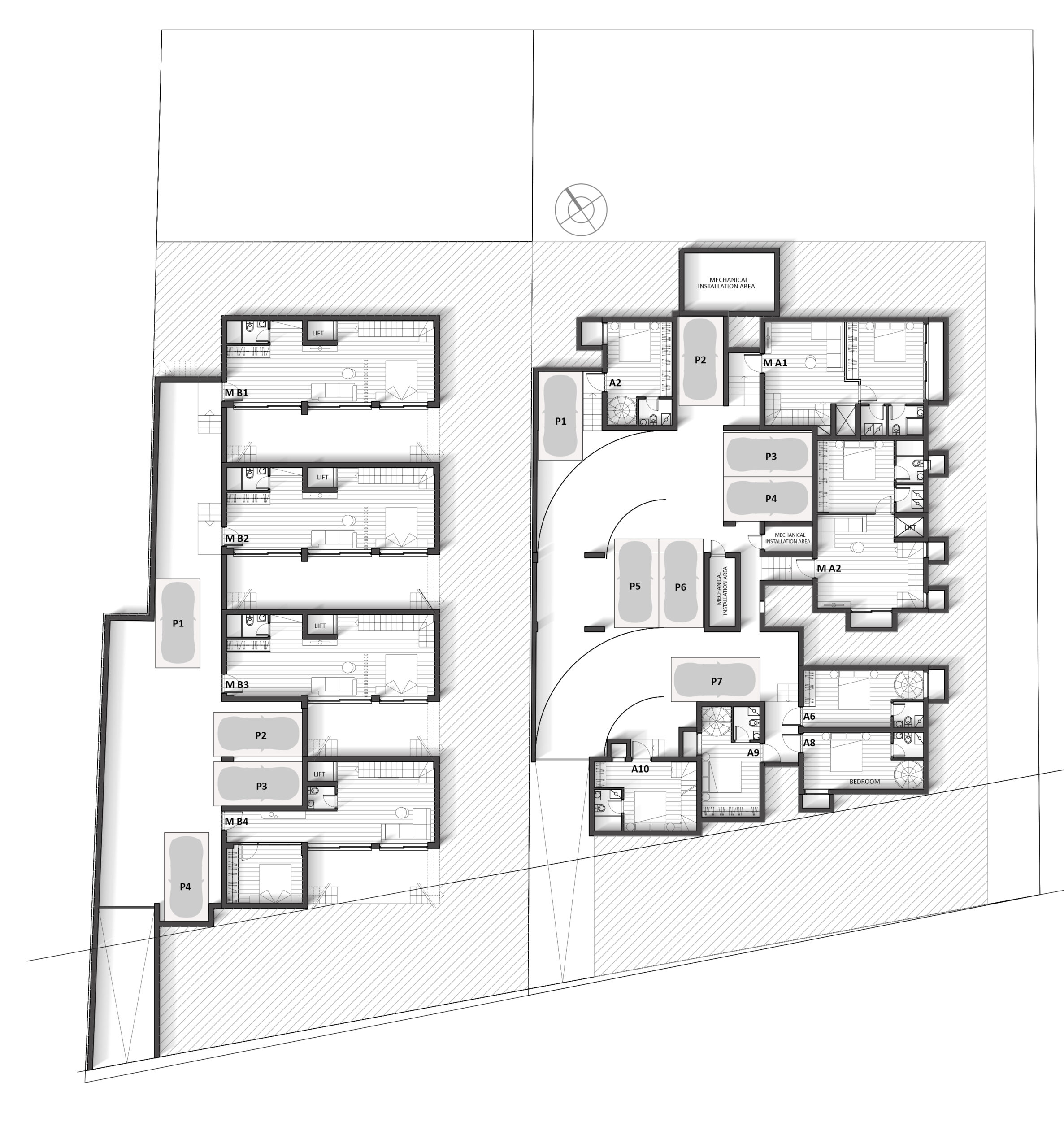
Το Blue Bay 4 αποτελείται από δύο συγκροτήματα κατοικιών, προσφέροντας συνολικά 11 διαμερίσματα, 5 & 2 πολυτελής μεζονέτες στο κτήριο Α και 4 πολυτελής μεζονέτες στο Β. Όλα τα διαμερίσματα είναι σχεδιασμένα με υψηλή αισθητική, λειτουργικότητα και περιβαλλόντικά υψηλά πρότυπα εξασφαλίζοντας άνεση και πολυτέλεια για τους κατοίκους τους.
Τεχνικά Χαρακτηριστικά
- Διαμερίσματα πλήρως επιπλωμένα με ηλεκτρικές συσκευές
- Υπόγειο Πάρκινγκ 11 θέσεων με υποδομή φόρτισης ηλεκτρικών οχημάτων.
- Κοινόχρηστος υπαίθριος χώρος
- Κοινόχρηστη πισίνα
- Κοινόχρηστο μπάρμπεκιου στον υπαίθριο χώρο – 30 τ.μ.
- Ενεργειακής Κλάσης Α++
- Αντλία θερμότητας ψύξης – θέρμανσης, χαμηλής κατανάλωσης
- Θερμοπρόσοψη
- Πόρτες ασφαλείας
- Κάμερες ασφαλείας
- Συναγερμοί
- Σύστημα Βιολογικού Καθαρισμού Λημάτων για εξοικονόμηση και ανακύκλωση νερού για το πότισμα των κήπων
Ελάτε να γνωρίσετε το Blue Bay 4 και να απολαύσετε την εμπειρία της πολυτελούς διαβίωσης σε μια από τις πιο όμορφες και ανερχόμενες περιοχές της Αθηναϊκής Ριβιέρας. Επικοινωνήστε μαζί μας για περισσότερες πληροφορίες και να προγραμματίσουμε μία συνάντηση.
Τοποθεσία - Google Maps
Πληροφορίες
Complex A
| Availability | Apartment | Level | Interior Space (sqm) | Balcony (sqm) | Garden (sqm) | Bedroom | Bathroom | WC | Parking | Access to Swimming Pool |
|---|---|---|---|---|---|---|---|---|---|---|
| Available | AV-1 | 0-2 | 172m² | 16m² | 91.5m² | 4 | 2 | 1 | 1 | ✔ |
| Available | AV-2 | 0-2 | 173m² | 12m² | 69.5m² | 4 | 2 | 1 | 1 | ✔ |
Complex B
| Availability | Apartment | Level | Interior Space (sqm) | Balcony (sqm) | Garden (sqm) | Bedroom | Bathroom | WC | Parking | Private Swimming Pool |
|---|---|---|---|---|---|---|---|---|---|---|
| Available | B-1 | 0-2 | 175m² | 17m² | 62m² | 4 | 2 | 1 | 1 | ✔ |
| Available | B-2 | 0-2 | 175m² | 17m² | 62m² | 4 | 2 | 1 | 1 | ✔ |
| Available | B-3 | 0-2 | 175m² | 17m² | 62m² | 4 | 2 | 1 | 1 | ✔ |
| Available | B-4 | 0-2 | 175m² | 17m² | 62m² | 4 | 2 | 1 | 1 | ✔ |











